Mountain House
Location Oregon
Date 2022
Status Conceptual
Tools Used Sketch Up, AutoCAD, Enscape,
Illustrator, ProCreate

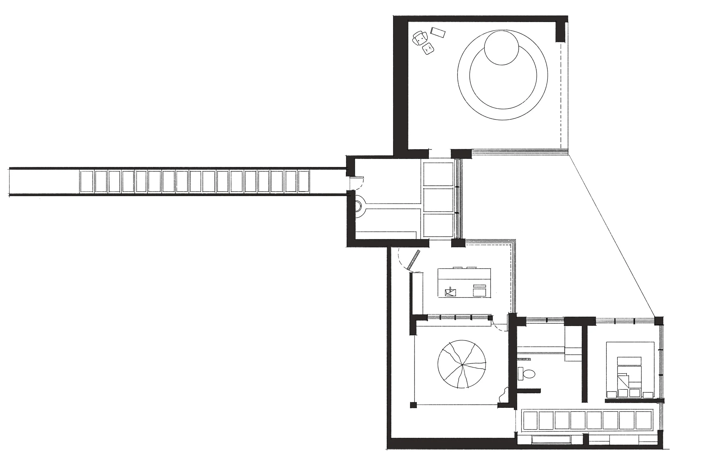
A residential project situated in the heart of Oregon, seeking to create a harmonious and contemplative living environment. This development offers a unique sanctuary for individuals seeking a deeper connection with nature, meditation, and self-reflection within the beautiful landscapes of the Pacific Northwest. Walking is integral to the concept of self-reflection. The paths through the home and the indoor gardens offer an opportunity for just that while also clearly marking changes between public and private spaces.






The Descent
The Descent draws you down into the home. By walking down the stairs, you start on the meditative path that makes its way through the home. The entry is made to separate you from the “outside world”. Each step down into the depths compresses the user, both spurring them onward into the home and farther away from the trials and tribulations of everyday life.
The Reveal
The Reveal takes on the role of a liberator, gently releasing the user from the compression of The Descent, offering a profound moment of respite, reflection, and anticipation. The reflective pool mirrors the beauty of the natural world, acting as a metaphorical mirror for self-reflection and contemplation. The play of light, water, and nature amplifies the sensation of openness and tranquility. The use of natural materials and textures further accentuates the connection to the landscape. The Reveal is not merely a passageway but a portal to a journey that begins the moment one crosses the threshold.
The Hearth
The Hearth is a sanctuary of warmth, connection, and a profound celebration of the fireplace as the heart of the home. The focal point of 'The Hearth' is a grand, monumental fireplace, its substantial presence adds a sense of rootedness to the space and embodies the importance of gathering around the warmth of the fire.
Awe-inspiring panoramic views, a reflective pool, and access to the great outdoors redefine the living room as a space where the natural world is celebrated and cherished as sacred. This living room seeks to elevate the concept of the hearth beyond its functional purpose, turning it into a symbolic and spiritual center of the home.
The Gallery
The Gallery dissolves the lines between indoor and outdoor living, as sliding glass walls create an unobstructed vista to the breathtaking beauty of the surrounding landscape and the reflecting pool. A palette of natural materials and organic textures is used throughout the kitchen, grounding the space. Warm wood, stone countertops, and earthy hues create a cozy, inviting atmosphere. The kitchen island becomes a gathering place, fostering a sense of togetherness as the art of cooking unfolds. The Gallery invites inhabitants to immerse themselves in the sensory delights of both food and the natural world.
The Baptism
This bathroom design concept seeks to create a space where daily rituals are elevated to sacred acts, harmonizing the cleansing power of water with the reverence for the natural world. The everyday act of washing ones self becomes a literal and metaphorical baptism, transforming the bathroom into a sanctum of tranquility. The connection with nature and the invitation to wash away the cares of the world allow the user to emerge refreshed, both physically and spiritually.
The rest
This bedroom concept invites inhabitants to connect with nature on a deeper level, fostering a mindful, sacred space for rest, meditation, and renewal. The room is an oasis where one can embrace the serenity of the natural world, offering solace and a reminder of the reverence we should hold for our planet and its intrinsic, sacred beauty.